RHL-Schrank H450, T-400 mm

0450-6018-40-00

RHL-Schrank H450, T-400 mm

  • Hochabdichtend Schutzart IP66/69, entspricht NEMA 4X
  • keine Stoßstellen
  • keine Toträume
  • für alle sensiblen Bereiche

Produktbeschreibung

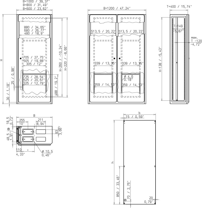
Schutzleiteranschluss nach DIN EN 61439-1, Bolzen M8x20 mm im Dach, Boden, Türe und Seitenwand. Montageplatte mit Bohrung vorbereitet.

Bodenbefestigung: 4 bzw. 6 Bohrungen 10.5 mm

Scharniertüre: Außen aufgesetzt, rechts angeschlagen. Ecken gerundet, r=30 mm, Verschluß: Baskülestangenschloß mit Sicherheitsvorreiber 3 mm Doppelbart.

Scharniere innenliegend, Öffnungswinkel 110°

Eingeschraubter Verstärkungsrahmen aus stabilem Vierkantrohr mit zwei zusätzlichen Querstreben mit Befestigungsbohrungen 4,5 mm im 25 mm Raster.

Dach geschlossen

Kabeleinführung: Boden mit 4 Stück Kabeleinführungsplatten außen bündig, von innen verschraubt.

Anreihung: Über innen liegendes seitliches Lochraster. Identisch mit Seitenwandbefestigung.

Technische Daten

  • Artikelnummer: 0450-6018-40-00
  • Schutzleiteranschluss: nach DIN EN 61439-1
  • Schutzart: IP66, IP69
    erfüllt technische Anforderungen nach NEMA 4X
  • Material: Edelstahl 1.4301
  • Abmessungen: Breite : 600 mm  Höhe : 1800 mm  Tiefe : 400 mm 
  • Gewicht: 84 kg
  • Schranktyp: Reinraum / Hygiene
  • Variante: ohne Montageplatte

Hinweis

  • Optional: Ausführung in V4A Wst-Nr. 1.4571, oder Stahlblech. Oberfläche außen geschliffen, Korn 300 oder poliert.
  • Türe außen bündig
  • mit Sichtfenster
  • Türe mit Linksanschlag
  • Schwenkrahmen Typ 0318 mit Befestigungssatz in Sonderfertigung
  • Kabeleinführung im Dach
  • Zwischenmaße
  • Trennwand
  • Preis auf Anfrage
  • Schrank kpl. mit vorderseitiger Scharniertüre 4 Kabeleinführungsplatten unten sowie 1 Schlüssel.
Seitenwand für RHL-Schrank H450
0456-7018-40-61
Seitenwand für RHL-Schrank H450
Passend für Höhe
1800 mm
Passend für Tiefe
400 mm
Material
Edelstahl 1.4301
Sockel 200 mm hoch für RHL-Schrank H450
0456-6002-40-11
Sockel 200 mm hoch für RHL-Schrank H450
Passend für Breite
600 mm
Passend für Tiefe
400 mm
Material
Edelstahl 1.4301
Montageplatte
0348-6018-00-13
Montageplatte
Passend für Breite
600 mm
Passend für Höhe
1800 mm
CAD-Daten und weitere Darstellungen:
Als PDF speichern Als PDF speichern Direkt-Anfrage
RHL-Schrank H450, T-400 mm
RHL-Schrank H450, T-400 mm
Schutzleiteranschluss nach DIN EN 61439-1, Bolzen M8x20 mm im Dach, Boden, Türe und Seitenwand. Montageplatte mit Bohrung vorbereitet.
Bodenbefestigung: 4 bzw. 6 Bohrungen 10.5 mm
Scharniertüre: Außen aufgesetzt, rechts angeschlagen. Ecken gerundet, r=30 mm, Verschluß: Baskülestangenschloß mit Sicherheitsvorreiber 3 mm Doppelbart.
Scharniere innenliegend, Öffnungswinkel 110°
Eingeschraubter Verstärkungsrahmen aus stabilem Vierkantrohr mit zwei zusätzlichen Querstreben mit Befestigungsbohrungen 4,5…

Merken
600 mm
1600 mm
400 mm
ohne Montageplatte
IP66, IP69
erfüllt technische Anforderungen nach NEMA 4X
600 mm
1600 mm
400 mm
mit Montageplatte
IP66, IP69
erfüllt technische Anforderungen nach NEMA 4X
600 mm
1800 mm
400 mm
mit Montageplatte
IP66, IP69
erfüllt technische Anforderungen nach NEMA 4X
600 mm
2000 mm
400 mm
ohne Montageplatte
IP66, IP69
erfüllt technische Anforderungen nach NEMA 4X
600 mm
2000 mm
400 mm
mit Montageplatte
IP66, IP69
erfüllt technische Anforderungen nach NEMA 4X
800 mm
1600 mm
400 mm
ohne Montageplatte
IP66, IP69
erfüllt technische Anforderungen nach NEMA 4X
800 mm
1600 mm
400 mm
mit Montageplatte
IP66, IP69
erfüllt technische Anforderungen nach NEMA 4X
800 mm
1800 mm
400 mm
ohne Montageplatte
IP66, IP69
erfüllt technische Anforderungen nach NEMA 4X
800 mm
1800 mm
400 mm
mit Montageplatte
IP66, IP69
erfüllt technische Anforderungen nach NEMA 4X
800 mm
2000 mm
400 mm
ohne Montageplatte
IP66, IP69
erfüllt technische Anforderungen nach NEMA 4X
800 mm
2000 mm
400 mm
mit Montageplatte
IP66, IP69
erfüllt technische Anforderungen nach NEMA 4X
1000 mm
1600 mm
400 mm
ohne Montageplatte
IP66, IP69
erfüllt technische Anforderungen nach NEMA 4X
1000 mm
1600 mm
400 mm
mit Montageplatte
IP66, IP69
erfüllt technische Anforderungen nach NEMA 4X
1000 mm
1800 mm
400 mm
ohne Montageplatte
IP66, IP69
erfüllt technische Anforderungen nach NEMA 4X
1000 mm
1800 mm
400 mm
mit Montageplatte
IP66, IP69
erfüllt technische Anforderungen nach NEMA 4X
1000 mm
2000 mm
400 mm
ohne Montageplatte
IP66, IP69
erfüllt technische Anforderungen nach NEMA 4X
1000 mm
2000 mm
400 mm
mit Montageplatte
IP66, IP69
erfüllt technische Anforderungen nach NEMA 4X
1200 mm
1600 mm
400 mm
ohne Montageplatte
IP66, IP69
erfüllt technische Anforderungen nach NEMA 4X
1200 mm
1600 mm
400 mm
ohne Montageplatte
IP66, IP69
erfüllt technische Anforderungen nach NEMA 4X
1200 mm
1800 mm
400 mm
ohne Montageplatte
IP66, IP69
erfüllt technische Anforderungen nach NEMA 4X
1200 mm
1800 mm
400 mm
mit Montageplatte
IP66, IP69
erfüllt technische Anforderungen nach NEMA 4X
1200 mm
2000 mm
400 mm
ohne Montageplatte
IP66, IP69
erfüllt technische Anforderungen nach NEMA 4X
1200 mm
2000 mm
400 mm
mit Montageplatte
IP66, IP69
erfüllt technische Anforderungen nach NEMA 4X

Kontakt für Produkte
Finden Sie Ihren persönlichen Ansprechpartner
Wir sind gerne für Sie da

Optimale Schaltschränke und Gehäuse entstehen nicht am Fließband, sondern im Gespräch mit Ihnen. Sind Sie bereit? Dann sprechen Sie am besten gleich mit Ihrem persönlichen häwa Berater.

Jetzt Berater wählen

PM-Leitung: Herr Eglof. PM-Leitung: Herr Eglof.