Stangenschloss lang

8101-208-9003

Stangenschloss lang

  • Umlenkung der Drehbewegung eines Verschlusses in eine Längsbewegung.

Produktbeschreibung

Zur Realisierung von 2 oder 3 Punkt Verriegelung

Zum Anschluss von Flachstangen.

Mit oder ohne Schließzunge zu montieren.

Auch zum Einbau innerhalb eines Dichtungsbereiches von Gehäusen.

Durch Wenden rechts oder links einsetzbar.

Technische Daten

  • Artikelnummer: 8101-208-9003
  • Ausführung: zum Einhängen
  • Material: Zinkdruckguss
  • Oberfläche: roh
  • Material und Oberfläche: Stangen: Stahl verzinkt; Ritzel: Zinkdruckguß; Erdungsfeder: Edelstahl 1.4310
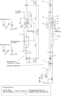
  • Hubweg: 24 mm

Hinweis

  • Betätigung des Stangenschlosses meist über einen "Schwenkhebelverschluss eckige Einbauöffnung für Flachstangen" oder über ein "Schlüsselschild". Der Aufbau und die Funktion des Schlüsselschildes ähnelt dem eines Drehriegels und muss separat angefragt werden.
  • Über den Adapter für Schließzunge lassen sich Standard-Schließzungen anbauen.
  • Bei häwa: Einbau in 2-flügeligen Schränken.
  • 1 Schloss mit Erdungsfeder und eine Befestigungsschraube für die Betätigung.
Schließzunge Druckguß
8101-208-9401
Schließzunge Druckguß
Material
Zinkdruckguss
Oberfläche
roh
Adapter für Schließzunge
8101-208-9403
Adapter für Schließzunge
Material
Zinkdruckguss
Oberfläche
roh
Als PDF speichern Als PDF speichern Direkt-Anfrage
Stangenschloss lang
Stangenschloss lang
Zur Realisierung von 2 oder 3 Punkt Verriegelung
Zum Anschluss von Flachstangen.
Mit oder ohne Schließzunge zu montieren.
Auch zum Einbau innerhalb eines Dichtungsbereiches von Gehäusen.
Durch Wenden rechts oder links einsetzbar.
Unterschied der Varianten: Die Ausführung "zum Einhängen" – siehe Abb. a1 – nehmen Sie, wenn Sie eine in der Länge passende Flachstange verwenden können. Die Flachstange besitzt bereits die entsprechende Aussparung. Die Ausführung "zum Aufstecken" - siehe Abb. a - nehmen…

ArtNr.
Material
Oberfläche
Ausführung
Merken
Zinkdruckguss
roh
zum Aufstecken

Kontakt für Produkte
Finden Sie Ihren persönlichen Ansprechpartner
Wir sind gerne für Sie da

Optimale Schaltschränke und Gehäuse entstehen nicht am Fließband, sondern im Gespräch mit Ihnen. Sind Sie bereit? Dann sprechen Sie am besten gleich mit Ihrem persönlichen häwa Berater.

Jetzt Berater wählen

PM-Leitung: Herr Eglof. PM-Leitung: Herr Eglof.